Omar, Wyndham Vale
Wyndham Vale, VIC
VIC
69379008f056db2436cc2e6a
About this home
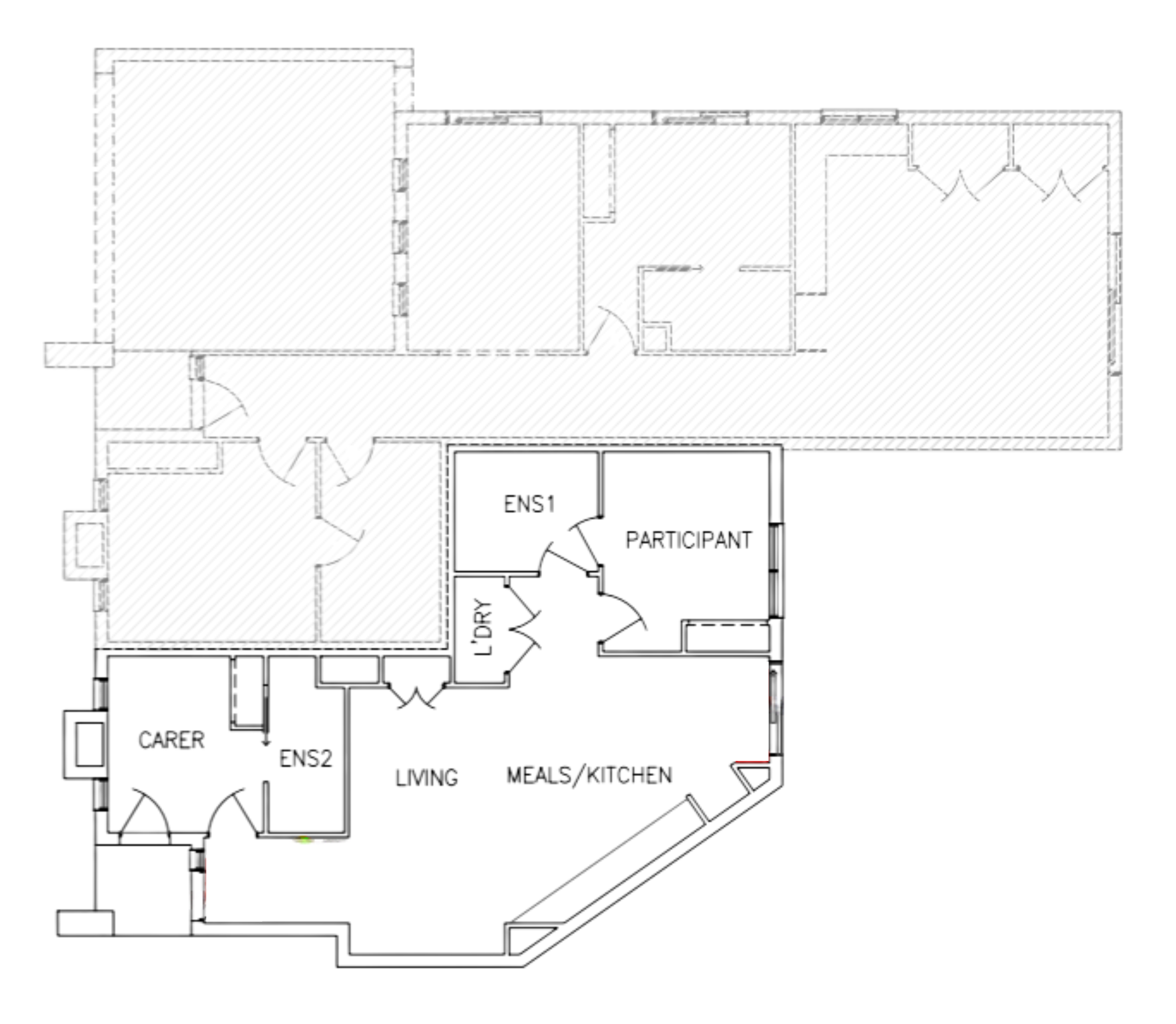
Omar in Wyndham Vale is a thoughtfully designed robust SDA home, split into two independent units that provide privacy and tailored support. The vacant unit includes a bedroom with ensuite, an open-plan kitchen, living and dining area, a separate carer’s room with ensuite, and a private rear courtyard.
Conveniently located just minutes from Manor Lakes Central Shopping Centre, Wyndham Vale Train Station, and local medical centres, the home combines accessible, comfortable living with easy access to everyday amenities.
No SIL provider attached - resident can bring their own support provider.
Floor Plan

Key Features
Location
2km to Manor Lakes Shopping Centre/Ballan Rd Bus Stop
2.8km to Wyndham Vale Train Station
2.1km to Manor Lakes Central Shopping Centre
8km to Pacific Werribee
1km to Wollahra Medical Centre
2.3km to Manor Lakes Medical Centre
Resident Search

Making a Referral?
Access everything you need to help your participant explore this home with confidence. Download the property brochure, referral form, or the latest vacancy listing for your state, all in one place.
Finding the right home can be a big step, but with SDA Living Australia, it’s a smoother journey for everyone involved.
























%20(32).jpg)


.jpg)






.jpg)
%20(21).jpg)
%20(12).jpg)




%20(30).jpg)

.jpg)
%20(34).jpg)
