Carluke, Berwick
Berwick VIC
VIC
687d8da2630295adab0d9bc7
About this home
Welcome to Carluke, a beautifully designed High Physical Support (HPS) home tucked away in a quiet pocket of Berwick, offering the ideal combination of comfort, accessibility, and everyday convenience.
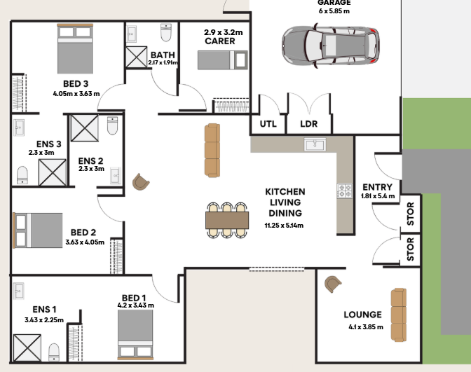
This modern 3-bedroom home features spacious, light-filled bedrooms, each with its own private ensuite, alongside a dedicated Onsite Overnight Assistance (OOA) room to ensure seamless 24/7 support. The open-plan kitchen, dining, and living area is warm, welcoming, and finished to a high standard, with adjustable benchtops, wide doorways, and thoughtfully designed details that make independent living easier.
With provisions for ceiling hoists, accessible bathrooms, built-in wardrobes, heating and cooling throughout, paved outdoor pathways, and step-free access, Carluke offers a supportive and stylish environment designed to meet complex needs with ease.
There are two remaining bedrooms available in this beautiful home. Contact our team today!
SIL Provider: Arete Care
Floor Plan
.png)
Key Features
Location
85m to Carluke Close/Bemersyde Drive Bus Stop
200m to Bemersyde Drive/Clyde Road Bus Stop
1.8km to Berwick Railway Station
1.6km to Berwick Springs
1.7km to Eden Rise Village
2.5km to Berwick High Street
4.2km to Beaconsfield Shopping Plaza
5km to Westfield Fountain Gate Shopping Centre
900m to Brentwood Park Family Practice
1.6km to Doctors at Casey Medical Centre
1.9km to St John of God Hospital
2.3km to Casey Hospital
Resident Search
Lara is looking for a housemate in Berwick!
Lara is a friendly and easygoing woman in her 50s who enjoys a calm, relaxed home environment and the comfort of her own space. She values her independence and would suit a housemate who also appreciates privacy and a peaceful home.
Lara has a love for music, especially Bruce Springsteen, and enjoys spending her days out and about in the community. After her morning routine, Lara is often out for the afternoon, whether that’s heading to the shops or enjoying lunch at a local park. She enjoys visiting places like the aquarium and zoo, and loves chatting about all things animals. She even has a pet fish at home, adding to the calm feel of her space.
While Lara enjoys her personal space, she also values genuine connection. She’d love to live with someone she can share a chat, a laugh, and stories with from time to time, striking a nice balance between independence and companionship. She’s looking for a like-minded housemate who enjoys a relaxed lifestyle and is happy to connect in a natural, easygoing way.
Carluke is a recently completed, three-bedroom High Physical Support home located in a quiet, leafy street in Berwick. It features generously sized bedrooms with private ensuites, two separate living areas, and a spacious open-plan kitchen and dining area. The large backyard is easily accessible via sliding doors from the living area, creating a great space to relax and enjoy the outdoors.
If you, or someone you support, are looking for a calm and comfortable home to share with Lara, reach out to us today!


Making a Referral?
Access everything you need to help your participant explore this home with confidence. Download the property brochure, referral form, or the latest vacancy listing for your state, all in one place.
Finding the right home can be a big step, but with SDA Living Australia, it’s a smoother journey for everyone involved.





























%20(32).jpg)

.jpg)






.jpg)
%20(21).jpg)
%20(12).jpg)





%20(30).jpg)

.jpg)
%20(34).jpg)
