Morningside, Armstrong Creek
Armstrong Creek, VIC
VIC
685b873a75f7b4ac4ae91799
About this home
Brand-New Robust SDA Home in Armstrong Creek, designed for Independence and Stability.
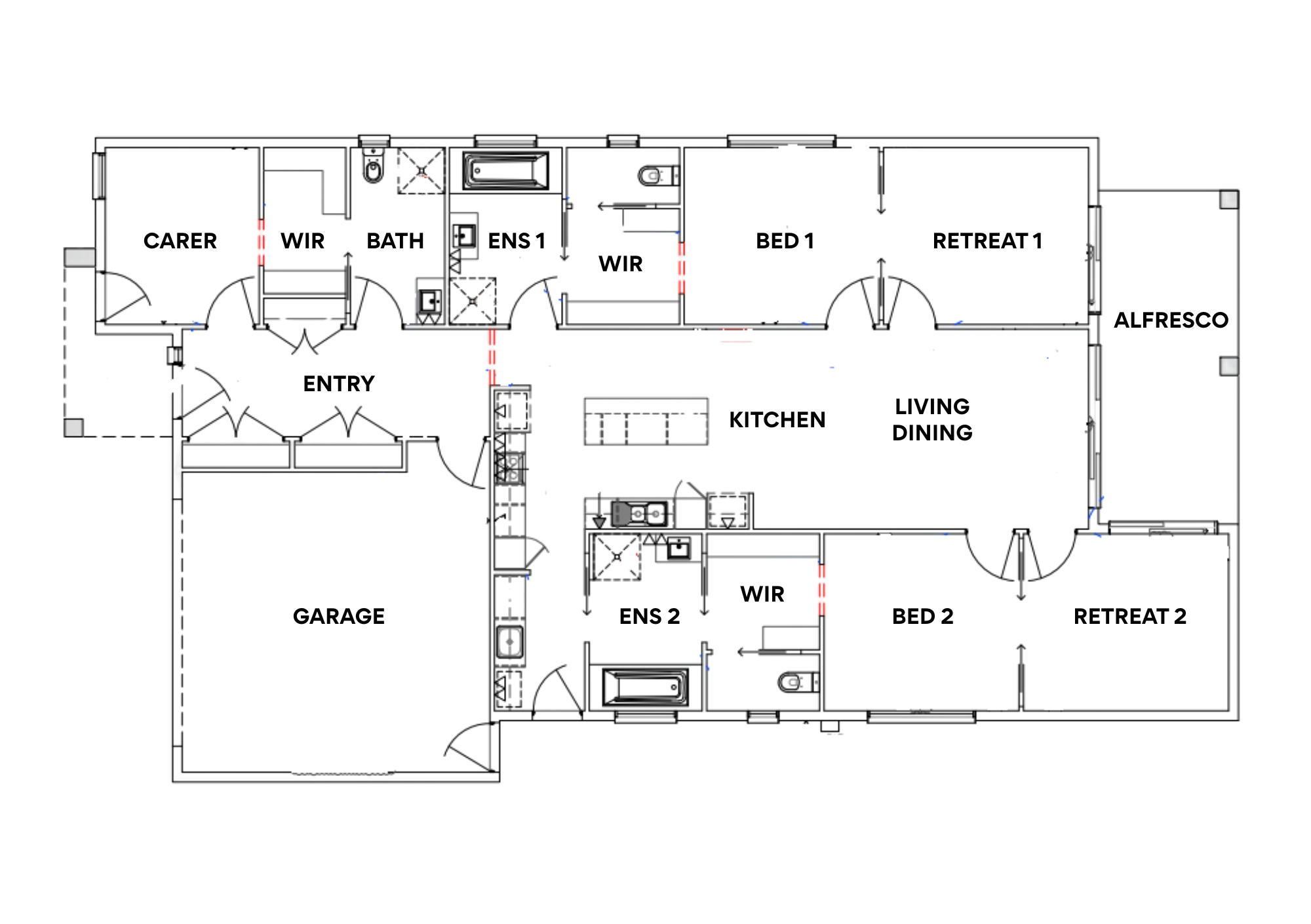
This beautifully built 2-bedroom home in Armstrong Creek is designed for NDIS participants with complex support needs. Built to Robust SDA standards, it offers a secure, calming environment for its residents while being conveniently located close to local amenities.
With the first bedroom already secured, the remaining room offers a private ensuite, built-in wardrobes, and easy access to shared spaces. The home also includes a dedicated Onsite Overnight Assistance (OOA) room to support around-the-clock care. Thoughtfully chosen, durable finishes throughout the home make day-to-day living safer, more comfortable, and easier to maintain.
Floor Plan

Key Features
Location
600m to Buchanan Bvd/Barwon Heads Rd Bus Stop
6.7km to Marshall Railway Station
2.2km to The Village Warralily Shopping Centre
4.8km to Charlemont Rise Shopping Centre
6.7km to Armstrong Creek Town Centre
2.2km to Warralily Family Medical Practice
4.4km to Armstrong Health
12km to Epworth Geelong
Resident Search
Grace is looking for a housemate in Armstrong Creek, Geelong!
Meet Grace! a fun woman in her 20s with a bright smile and a cheeky, playful personality. She loves making people laugh and enjoys everything from watching A Current Affair and browsing op-shops to collecting little treasures, singing, and visiting indoor pools.
Grace leads a busy, active lifestyle with shopping trips, café visits, walks, farm and animal care, bowling, and day outings. She also loves recording her favourite moments to enjoy later.
She’s hoping for a housemate who enjoys an active, engaging lifestyle, respects personal space, and likes sharing stories about their day. The brand-new Armstrong Creek home, due for completion in December, has two bedrooms. Each resident has their own private bedroom, ensuite, and a retreat, with shared kitchen, dining, and living spaces. A large backyard with an undercover alfresco offers plenty of room to relax or enjoy the outdoors together.


Making a Referral?
Access everything you need to help your participant explore this home with confidence. Download the property brochure, referral form, or the latest vacancy listing for your state, all in one place.
Finding the right home can be a big step, but with SDA Living Australia, it’s a smoother journey for everyone involved.



%20(23).jpg)
%20(27).jpg)
%20(24).jpg)
%20(26).jpg)
%20(25).jpg)
%20(22).jpg)




%20(32).jpg)


.jpg)






.jpg)
%20(12).jpg)





%20(30).jpg)

.jpg)

%20(4).jpg)